Aktuell

Hausteil 3 (Eckhaus) ist vermietet. Hausteil 2 ist noch verfügbar. Bezug nach Vereinbarung. Für eine Besichtigung melden Sie sich direkt bei Natalie Vieli unter 079 520 80 35.
   

Hausteil 2 vermietet


Merkmale und Ausstattung

Fassade Mittelhaus Suedseite   Haus Ansicht Nord gerade  

  • Ruhig und idyllisch an Landwirtschaftszone angrenzend
  • Familienfreundlich
  • Sitzplatz / eigener Eingang
  • Parkplatz
  • Drei Nasszellen
  • Kachelofen
  • Komfortlüftung
  • Haustiere erlaubt

Im Eingangsbereich, Küche sowie Bäder keramische Bodenplatten.
Bodenbeläge im Wohn-Essbereich, Korridor sowie Zimmer in robustem Edelkunstharzlaminat.

Komfortlüftung mit Frischluftzufuhr- und Abluft in allen Räumen. Internet- und TV-Anschluss in allen Zimmern.

Küche mit grossem Kühlschrank, separatem Gefrierschrank, Induktionskochfeld, Geschirrspüler sowie Heissluftofen mit Dampfgarfunktion.

Die Zimmer im Dachgeschoss sind mit Rollladen ausgestattet (elektrisch bedienbar).

Eckdaten

Objekttyp
Hausteil Mittelhaus
Zimmer
5 1/2 - Zimmer
Wohnfläche
147 m2
Etagen 3, zusätzlich Estrich
Sitzplatz 18 m2
Ausstattung Komfortlüftung, Kachelofen, Kabel-TV, Minergie Bauweise
Haustiere Auf Anfrage erlaubt
Verfügbar Vermietet
Nettomiete Auf Anfrage
Nebenkosten Auf Anfrage
Parkplatz SFr. 60.-



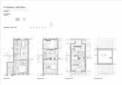
Grundriss


534 Vermietungsplaene Hausteil 2 reduziert


Raumaufteilung

Erdgeschoss
Entrée mit grosszügiger Einbaugarderobe, Wohnzimmer mit Kachelofen (21 m2), Küche und Essbereich (15 m2) sowie Gäste-WC mit Waschturm.
   
   Entree Whg 2   2 Wohnzimmer    Wohnzimmer mit Kachelofen und Korridor
   2 Kueche 1   EG Esszimmer2
   2 Bad EG   2 EG Waschturm     

Obergeschoss
Zwei Zimmer (22 und 14,4 m2) sowie Bad mit Doppellavabo und Badewanne.

2 OG Korridor   OG Zimmer Sued   OG Zimmer Nord   OG Bad mit Badewanne

Dachgeschoss
Zwei Zimmer (19,2 und 15,2 m2) sowie Bad mit Dusche und Einbaumöbel.

DG Zimmer Sued   2 DG Aussicht Sued
DG Zimmer Nordseite   2 DG Aussicht Nord   DG Bad mit Lavabo   DG Dusche

Estrich
(20 m2)

Die Dokumentation zum Hausteil 2 kann hier heruntergeladen werden.